Vybrat Stránku
vizualizace roubenka 2 - Rekonstrukce roubenky

Rekonstrukce Roubenky

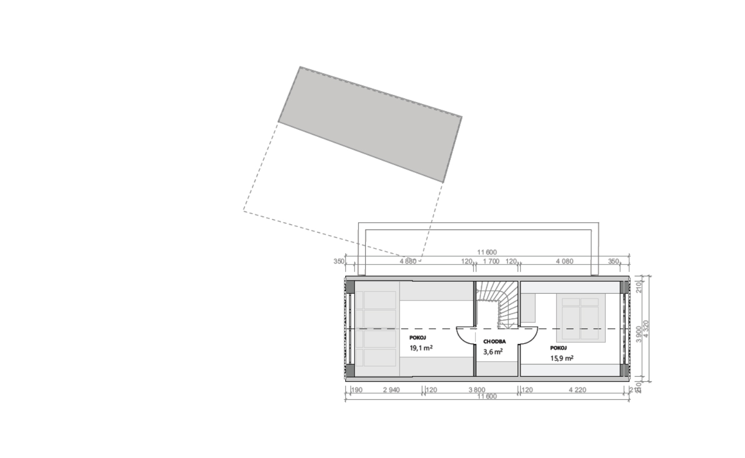
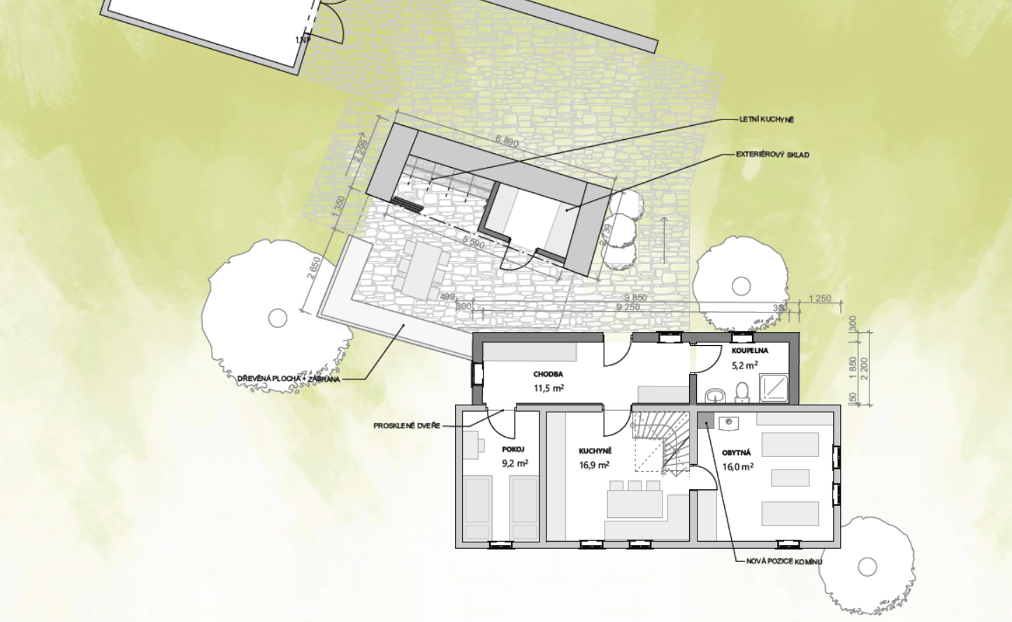
Rekonstrukce tradiční roubenky v obci Riečky na Slovensku navrací tomuto místu jeho původní horský charakter a architektonickou čistotu. Projekt počítá s odstraněním nevhodných dostaveb z období socialismu, které narušily historickou podobu objektu.

Cílem je obnovit autentickou architekturu slovenských hor – jednoduchou, funkční a přirozeně zasazenou do krajiny. Použity budou tradiční materiály, především dřevo a kámen, s důrazem na řemeslné zpracování a respekt k původnímu stavebnímu řešení.

Autor: ing.arch. Tomáš Zahuta
Rok: 2024

vizualizace roubenka 1 - Rekonstrukce roubenky
vizualizace roubenka 3 - Rekonstrukce roubenky
roubenka bl 2np - Rekonstrukce roubenky
roubenka stav - Rekonstrukce roubenky
roubenka bl3 - Rekonstrukce roubenky
roubenka bl 1np - Rekonstrukce roubenky