Novodobý statek do Mniší
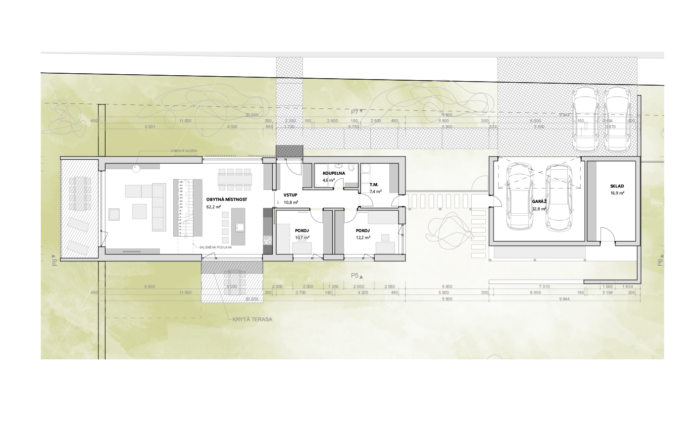
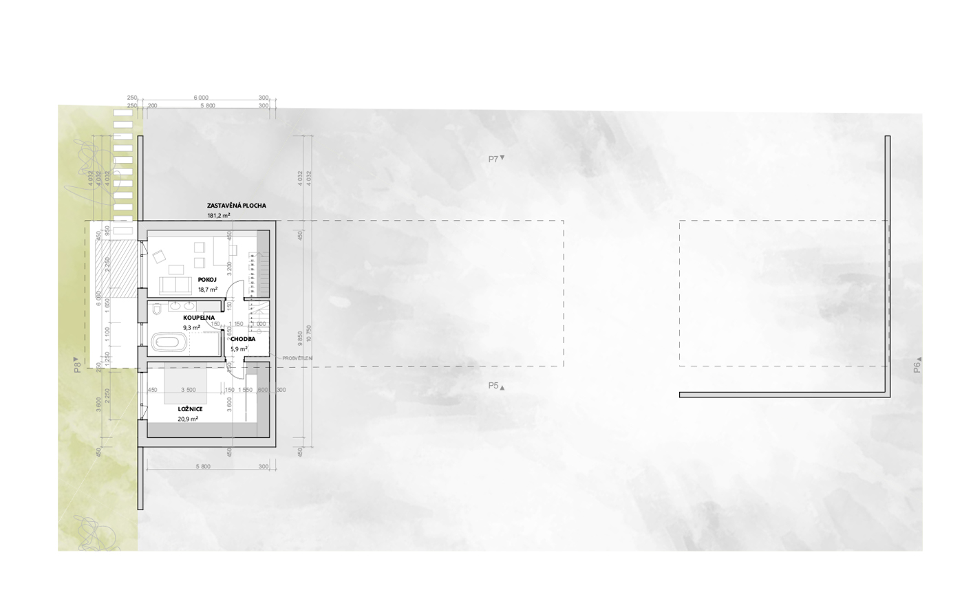
Rodinný dům v Mniší představuje současnou interpretaci tradičního statku, zasazeného do svažitého pozemku s respektem k místnímu kontextu. Hlavní hmota domu – „vysutá loď“ – je výrazně vysazena nad betonový podstavec a reaguje tak na terénní konfiguraci. Tento podstavec slouží jako stabilní základ domu.
Fasáda domu kombinuje přírodní dřevěné opláštění s kamennými prvky na zpevněných plochách, čímž vytváří harmonické propojení s okolní krajinou a odkazuje na původní materiálové řešení venkovských stavení.
Dům byl navržen pro kolegu stavebního inženýra, který se zároveň ujal role stavebníka. Díky jeho důvěře v návrh a technické erudici se podařilo realizovat projekt s minimálními úpravami oproti studii. Výsledkem je stavba, která v sobě spojuje architektonickou vizi a stavební zkušenost.
Autor: ing.arch. Tomáš Zahuta, ing.arch. Antonín Kobližka, ing. Roman Vojtíšek
Rok: 2020










