Studie DOJA
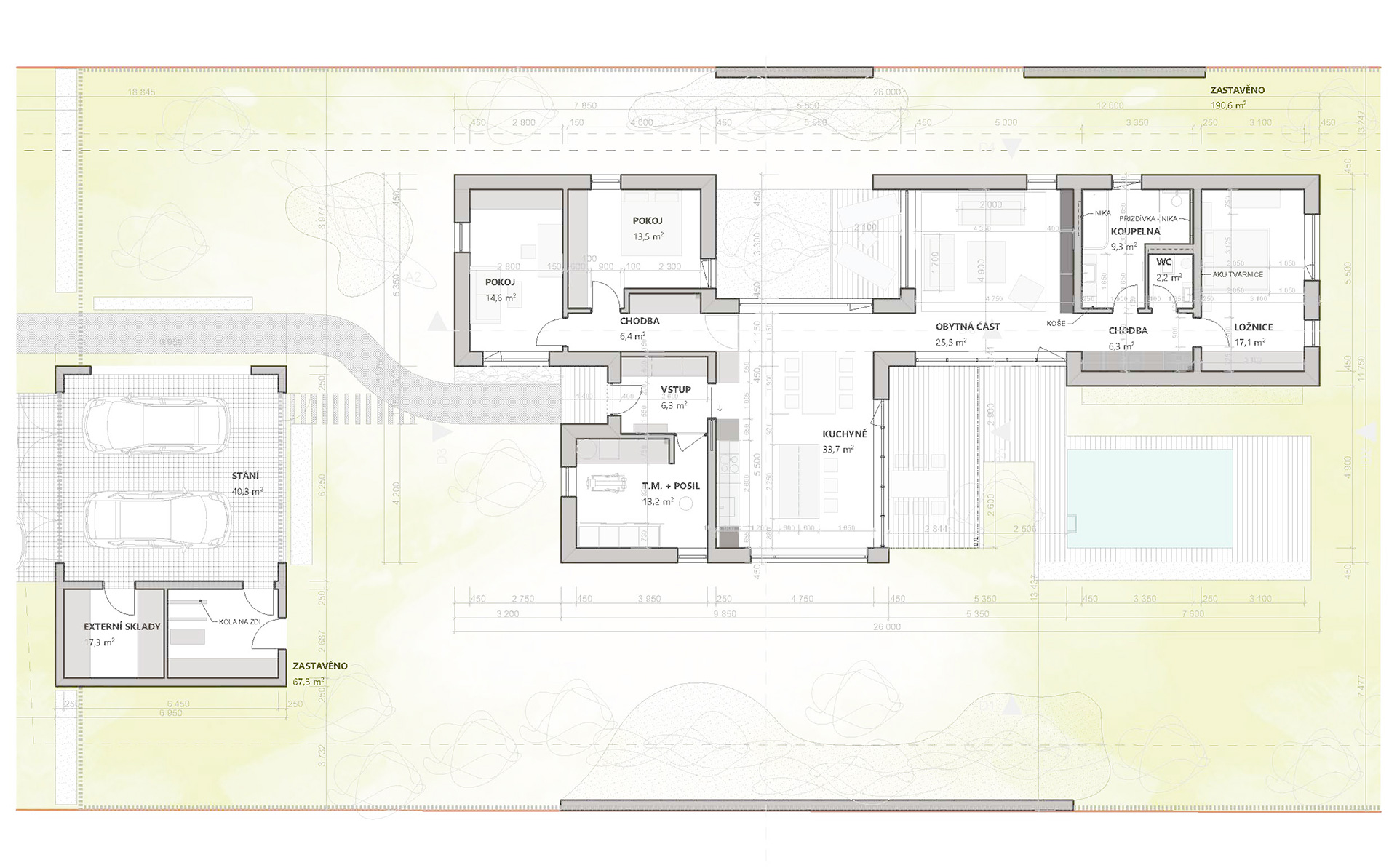
Architektonický návrh pracuje s různorodými prostředími kolem domu, která se mění v čase i podle ročních období – obyvatelům tak umožňuje přirozeně reagovat na životní rytmus i klimatické podmínky. Severní atrium nabízí příjemně stinné útočiště v letních měsících, zatímco jižní fasáda otevírá interiér slunci a během zimy přináší pasivní solární zisky. DOJA je příkladem bydlení, které inteligentně reaguje na světové strany, pracuje s kvalitou světla a vytváří vyvážený prostor pro každodenní život v úzkém propojení s přírodou i soukromím.
Autor: ing.arch. Tomáš Zahuta
Rok: 2022





