Rekonstrukce domu v Janovicích
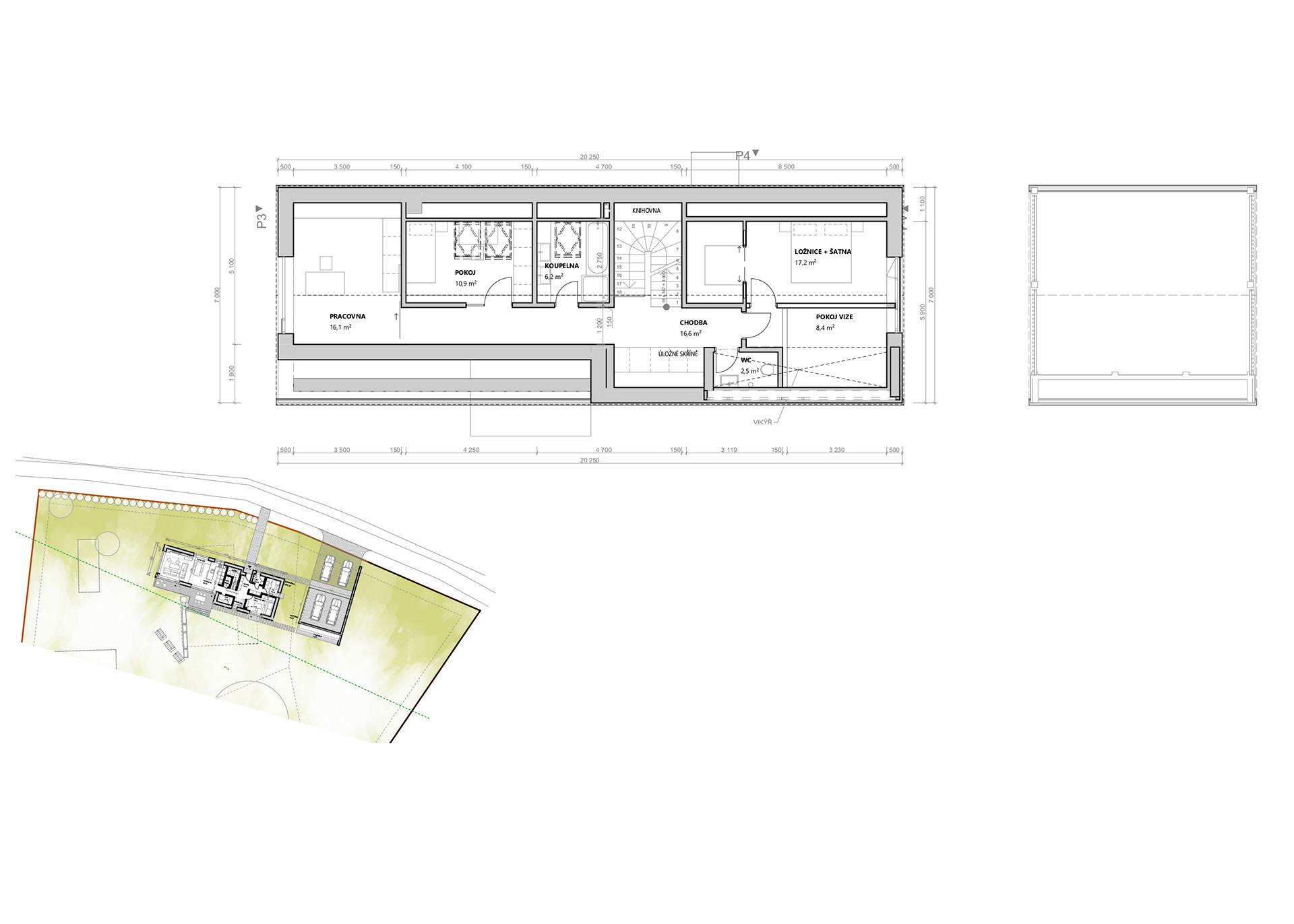
Projekt v Janovicích představuje výraznou transformaci původního domu s respektem k historii místa i současným potřebám bydlení. Z původní stavby bude zachována pouze kamenná sklepní část, která se stane základem nové hmoty. Tento prvek nese odkaz na dlouhou historii domu i charakter regionální architektury a vytváří stabilní základnu celého návrhu.
Nově navržená nadzemní stavba bude otočena vůči původní orientaci – tak, aby se otevřela směrem k lesu a jižnímu slunci. Tím dojde nejen k lepšímu propojení se zahradou, ale také k odklonění obytných prostor od komunikace.
Nová hmota bude opláštěna opalovaným dřevem, které v kontrastu s kamenem spodní části vnese do kompozice dynamiku a moderní výraz. Hlavní loď domu bude orientována výhledy do údolí a otevřené krajiny, čímž vznikne silný dialog mezi interiérem a okolní přírodou.
Autor: ing.arch. Tomáš Zahuta, ing.arch. Antonín Kobližka
Rok: 2025







