Přístavba a nástavba veterinární kliniky
Přístavba a nástavba veterinární kliniky
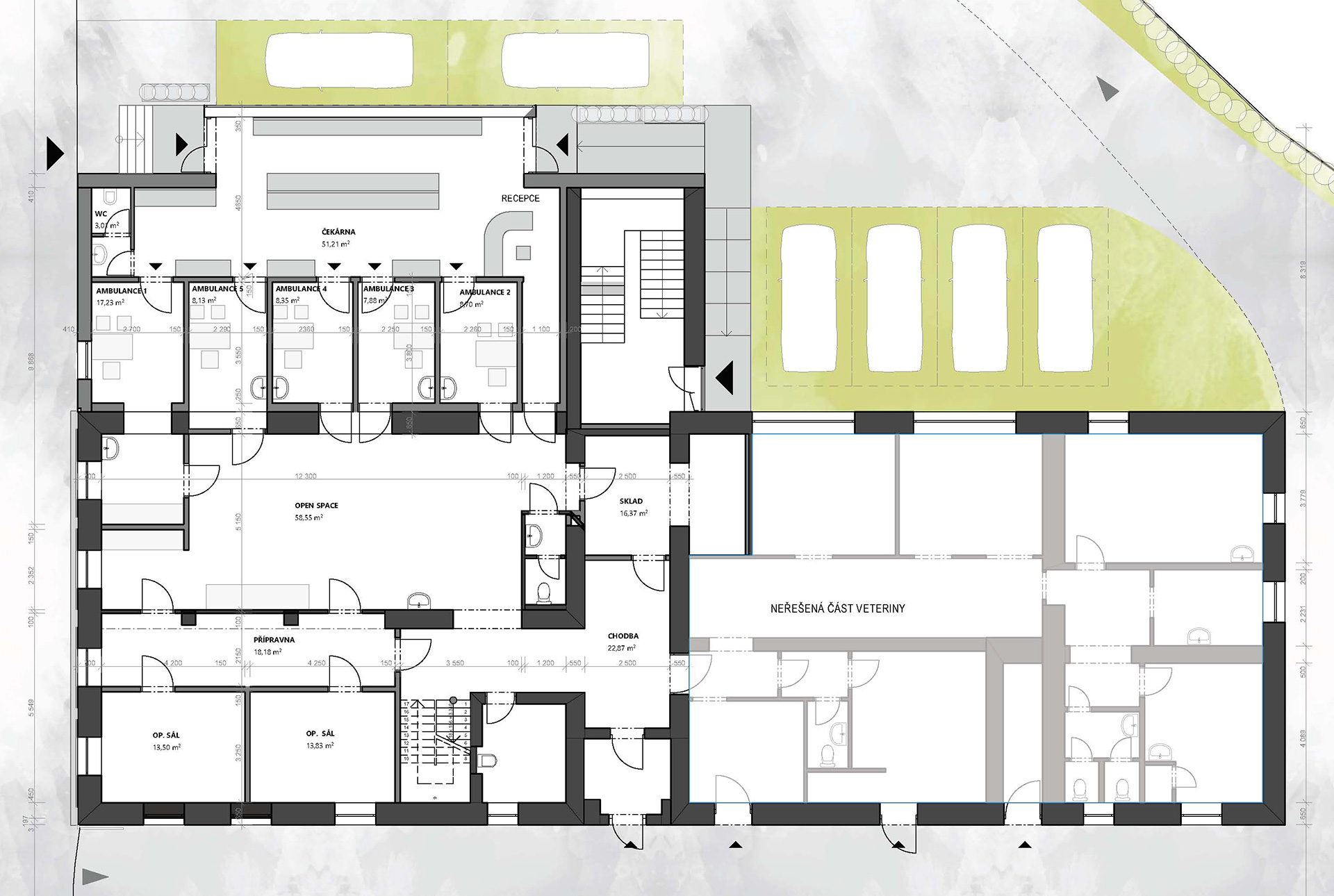
Nová studie řeší rozšíření historické budovy veterinární ordinace ve Frýdku-Místku formou přístavby a nástavby, které doplňují stávající architektonický kontext.
Přístavba navazuje na původní objekt a zároveň vytváří novotvar. Umožňuje rozšíření půdorysu, zlepšení provozních vazeb a celkové funkční zhodnocení budovy.
Nástavba přináší moderní vloženou hmotu ve formě mezonetových střešních bytů, které nahradí původní šikmou střechu. Výsledná plochá střešní vestavba přináší současný architektonický jazyk a zároveň rozvíjí potenciál místa k novému využití.
Autor: ing.arch. Tomáš Zahuta, ing.arch. Antonín Kobližka
Rok: 2024









