Mateřská škola Přáslavice
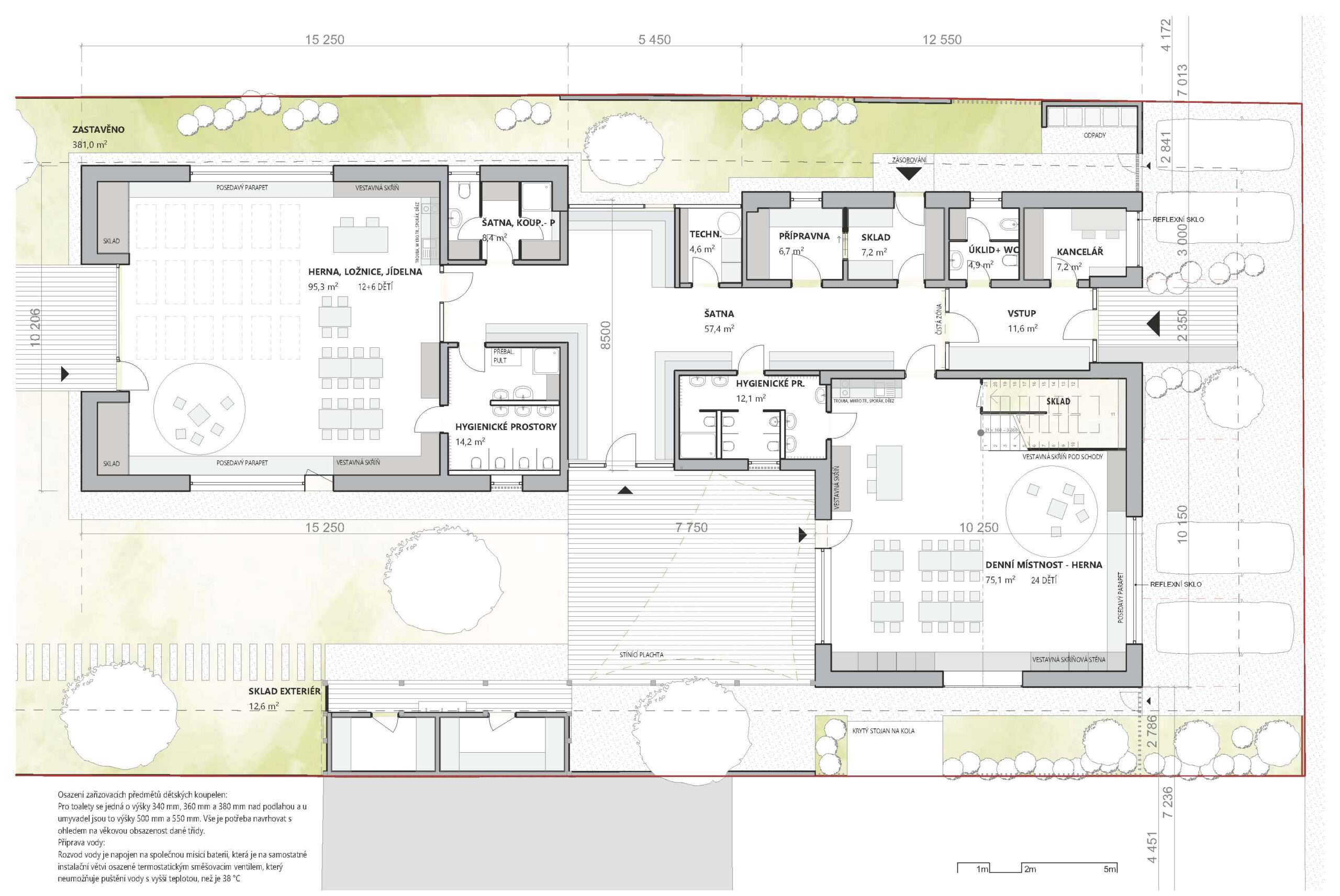
Architektonický návrh nové mateřské školy v Přáslavicích vychází z drobného měřítka, vesnického charakteru okolní zástavby. Objekt je rozdělen do menších objemů, které odpovídají dětskému měřítku a zároveň přispívají k přehlednosti a čitelnosti stavby. Jasná orientace ve struktuře budovy podporuje pocit bezpečí i intuitivní pohyb dětí a personálu. Stavba navazuje na tradiční historickou formu zástavby – uliční trakt se přirozeně propojuje se zahradní, technickou částí a respektuje orientaci ke světovým stranám i urbanistický kontext okolí. Výrazná prosluněnost a odstup od sousedních parcel zajišťují kvalitní vnitřní klima i dostatek soukromí. Dispozice objektu je členěna na oddělené funkční třídy s vnitřními a venkovními prostory, které plynule přecházejí jeden v druhý. Vstupní předprostor slouží k pohodlnému parkování a bezpečnému předání dětí, zásobování probíhá samostatným vstupem bez křížení s hlavním provozem. Zahrada je rozdělena do tématických zón – travnaté plochy, herní prvky, zpevněné plochy a terasy poskytují různé formy pobytu i hry. Nechybí ani skladové prostory pro zahradní vybavení. Vnitřní chodby a společné prostory tvoří přirozenou spojku mezi jednotlivými věkovými kategoriemi a jsou vizuálně propojeny pomocí průhledů a prosklených prvků. Třídy se otevírají směrem k exteriéru a podporují volnost pohybu, vizuální kontakt s okolím a propojení s přírodou – škola bez bariér, která dětem nabízí bezpečné a inspirativní prostředí.
Autor: ing. arch. Tomáš Zahuta, ing. arch. Antonín Kobližka
Rok: 2024






