Hasičárna Bratřejov
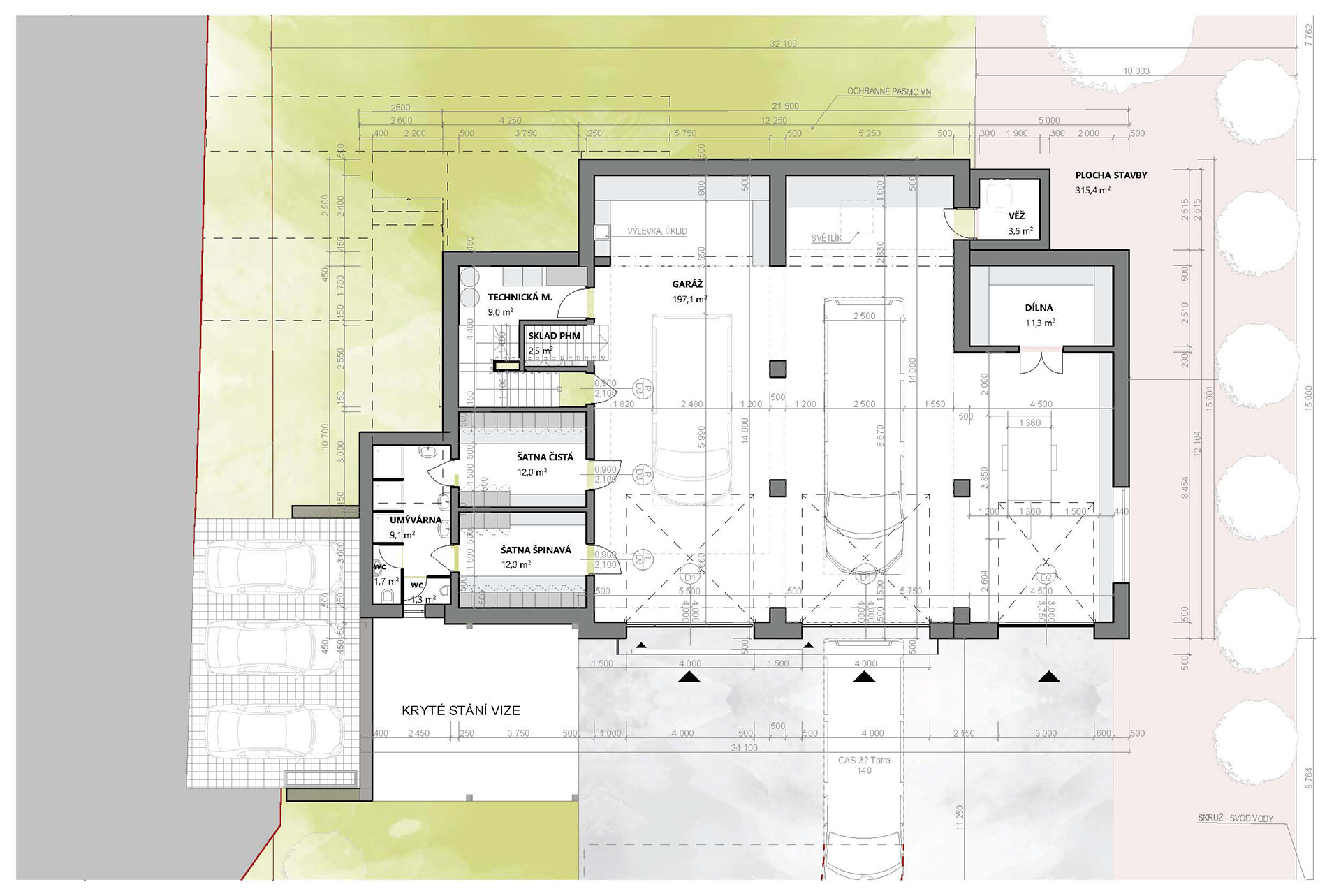
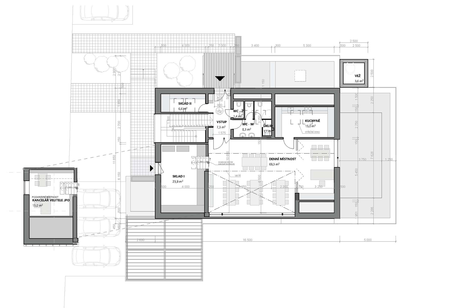
Architektonická studie řeší návrh nové budovy hasičské zbrojnice v obci Bratřejov. Cílem návrhu je vytvořit funkční, moderní a zároveň citlivě zasazený objekt do venkovského prostředí, který bude sloužit nejen potřebám místního Sboru dobrovolných hasičů, ale také širší komunitě.
Navrhovaná hasičská zbrojnice bude plnit především tyto funkce:
-
Zázemí pro výjezdovou jednotku SDH, včetně garážového stání pro hasičskou techniku, hygienického zázemí, šaten a skladu vybavení.
-
Prostor pro školení, setkávání a činnost členů sboru, včetně klubovny/místnosti pro porady a výuku.
-
Možnosti pro komunitní a společenské využití, zejména v případech mimořádných událostí nebo pořádání akcí.
Autor: ing. arch. Tomáš Zahuta, ing. arch. Antonín Kobližka
Rok: 2024





